杭徽高速於潜出口下来后,穿过田野和村庄,不多时便到了於潜潜阳谷的项目基地,这里被称为蛇岭脚。三道山谷汇聚出一个小水库,四周青竹满山,时闻小溪潺湲,具备构筑乡村休闲旅游的综合价值。本项目拟打造成以山水田园为背景的原生态健康乡村生活民宿体验地、乡村旅游目的地。
项目由1栋入口接待中心、1栋游客服务中心、1栋餐厅、38栋套房单体和多栋配套公建组成,总建设用地面积约为1.26万方,总建筑面积约为1.8万方。建筑的布局以朝向中心水景为主,三条山谷作为主要载体,建筑与景观交融错落地放置在谷中。重点位置设置了若干服务与游乐设施点,并以步道相互联系,在较大的地块范围内形成了有效多层次的游赏服务配套系统。
▼原方案游客服务中心

▼现方案游客服务中心

项目历经多年,政策环境也不断变化,经过多轮调整,建筑从最初的山地小独栋改为最终的点式公寓。通过点状建筑的建设,最大限度的保留了原有场地的特征,尊重自然山体、与自然和谐共存。由于总造价的限制,建筑上尽量控制体型,减少玻璃幕墙等高价建材的使用。
▼原方案——山地点式别墅

▼现方案——山地点式公寓

作为整个项目的首期建设部分,入口接待中心的设计过程也较坎坷。建
筑基地位于潜阳谷片区的入口处,面朝主路、背靠山体,内部地形高差丰富,并且原有两幢夯土结构的民房。
经过现场实勘,此两幢夯土民房外墙均有较大裂口,从安全角度而言,加固的代价大大超过新建的代价。
但从场地特色的连贯性和建筑风貌的特色性角度而言,在这里打造一个夯土风格的民宿建筑在当时是非常新颖且具有强吸引力的。
另一个客观条件是政策上要求建筑“原址原建”,于是首版入口接待中心方案以原有的两幢建筑肌理为基础,结合室外的围合空间,整体呈现出了一个乡土同时又具有一定现代建筑细节和设计品质的形象。
▼原入口接待中心鸟瞰图与效果图

在项目的推进中,用地红线和建设条件发生了较大的改变,原有的设计方案必须做颠覆性的修改。最后实施的方案是在一个不规则的用地红线范围内做了新的突破性尝试,同时也要解决场地中的高差。通过内院和流线的组织,功能的再度明确和划分,得到了现在入口接待中心的建筑方案形式。
在方案的修改中,我们以新的视角去设计建筑的外形,更重视其是否能满足功能相对完善和业主“不浪费土地”尽可能占满的诉求,内部空间也是否能够在用地局限性很大的情况下做的有趣,同时建筑外部形态能继续呈现出山地村落建筑高低错落的特点。目前项目已进入实施建设阶段。
▼实施版的入口接待中心




▼入口接待中心南立面图

▼入口接待中心一层平面图

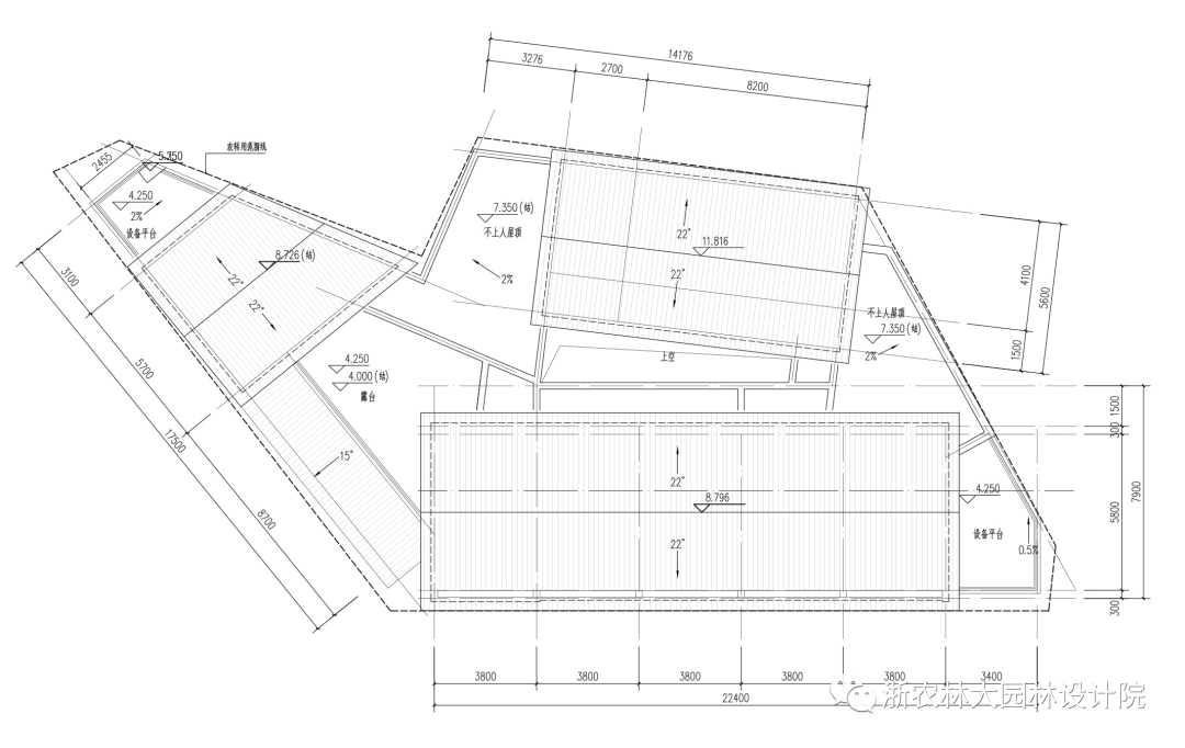
▼入口接待中心屋顶平面图
